quédate 7 noches desde a partir de
210 €
26 jun - 3 jul 2026
Precios y disponibilidad

Camping Les Lauriers Roses ★★★★

Les Grands Châteaux de Villepey D7 Route de Roquebrune - 83600 Fréjus, Francia - Ver en el mapa
Camping Les Lauriers Roses - Camping Var
Camping Les Lauriers Roses - Camping Var - Image N°2
Reproducir el vídeo
Camping Les Lauriers Roses - Camping Var - Image N°3
+ 70 fotos
Camping Les Lauriers Roses - Camping Var - Image N°4
Camping Les Lauriers Roses - Camping Var - Image N°5
Camping Les Lauriers Roses - Camping Var - Image N°6
+ 67 fotos
1/73
Reseñas de Campings.com
8.4/10
Ver todos los comentarios

El camping es tranquilo y está bien mantenido. Tuvimos una estancia muy agradable.

Claire, 7/10, en 17/8/23
  • Parque natural Les petits Maures y estanques de Villepey a 200 metros
  • Mar de arena fina a 3 kilómetros
  • Diversas actividades y ocio para toda la familia

¡Descubra el Camping Les Lauriers Roses en Fréjus, en el Var! Su estancia tendrá lugar en Provenza-Alpes-Costa Azul, no lejos de la playa (3 km). Déjese seducir por el encanto de este lugar tan especial. Apreciará especialmente la piscina exterior climatizada (accesible incluso fuera de tempora... Leer más

Punto Wifi gratuito
Junto al mar
Piscina exterior climatizada
Alquiler de bicicletas
Cancelación gratuita*

Hasta 30 días antes de la estancia

Reserva por solo 1 €**

¡Reserva tus vacaciones de verano por solo 1 € y paga el resto más tarde!

Consigue un reembolso de 10%

En forma de crédito de viaje, por cada reserva

Elegir mi alojamiento

10 alojamientos correspondiente a tu selección
Cancelación gratuita
BUNGALOW DE LONA 2 personas - COCO SWEET DUO sin sanitarios 11 m² (sin sanitarios)
BUNGALOW DE LONA 2 personas - COCO SWEET DUO sin sanitarios 11 m² (sin sanitarios)
BUNGALOW DE LONA 2 personas - COCO SWEET DUO sin sanitarios 11 m² (sin sanitarios)
BUNGALOW DE LONA 2 personas - COCO SWEET DUO sin sanitarios 11 m² (sin sanitarios)
BUNGALOW DE LONA 2 personas - COCO SWEET DUO sin sanitarios 11 m² (sin sanitarios)
BUNGALOW DE LONA 2 personas - COCO SWEET DUO sin sanitarios 11 m² (sin sanitarios)
+ 1 foto
BUNGALOW DE LONA 2 personas - COCO SWEET DUO sin sanitarios 11 m² (sin sanitarios)
11m²
2 adultos
1 habitaciones
Nuevo
Terraza semicubierta
Acceso WiFi
cafetera
refrigerador
Salón de jardín
microonda
Plaza de parking
Mejor precio
Del 27 jun al 4 jul, 7 noches, a partir de
295 €
30 € reembolsados
Cancelación gratuita
BUNGALOW DE LONA 4 personas - COCO DULCE QUATRO sin sanitarios 16 m² (16 m²)
BUNGALOW DE LONA 4 personas - COCO DULCE QUATRO sin sanitarios 16 m² (16 m²)
BUNGALOW DE LONA 4 personas - COCO DULCE QUATRO sin sanitarios 16 m² (16 m²)
BUNGALOW DE LONA 4 personas - COCO DULCE QUATRO sin sanitarios 16 m² (16 m²)
BUNGALOW DE LONA 4 personas - COCO DULCE QUATRO sin sanitarios 16 m² (16 m²)
BUNGALOW DE LONA 4 personas - COCO DULCE QUATRO sin sanitarios 16 m² (16 m²)
+ 1 foto
BUNGALOW DE LONA 4 personas - COCO DULCE QUATRO sin sanitarios 16 m² (16 m²)
16m²
4 adultos
2 habitaciones
Nuevo
Terraza semicubierta
Acceso WiFi
cafetera
refrigerador
Salón de jardín
microonda
Plaza de parking
Mejor precio
Del 5 al 12 sept, 7 noches, a partir de
325 €
33 € reembolsados
Cancelación gratuita
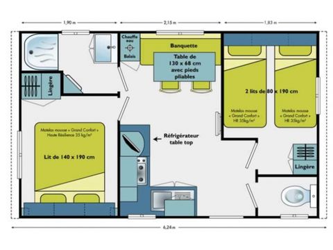
MOBILHOME 2 personas -  EVO20 CONFORT
MOBILHOME 2 personas -  EVO20 CONFORT
MOBILHOME 2 personas - EVO20 CONFORT
20m²
2 adultos
1 habitaciones
1 Baño
Nuevo
Terraza semicubierta
Acceso WiFi
aire acondicionado
Animales permitidos *
cafetera
Tumbona
refrigerador
Salón de jardín
microonda
Plaza de parking
Mejor precio
Del 27 jun al 4 jul, 7 noches, a partir de
420 €
42 € reembolsados
Cancelación gratuita
MOBILHOME 4 personas - SUPER VENUS
MOBILHOME 4 personas - SUPER VENUS
MOBILHOME 4 personas - SUPER VENUS
MOBILHOME 4 personas - SUPER VENUS
MOBILHOME 4 personas - SUPER VENUS
23m²
4 adultos
2 habitaciones
1 Baño
Terraza semicubierta
Acceso WiFi
aire acondicionado
Animales permitidos *
cafetera
Tumbona
congelador
refrigerador
Salón de jardín
microonda
Plaza de parking
Mejor precio
Del 30 may al 6 jun, 7 noches, a partir de
520 €
52 € reembolsados
Cancelación gratuita
MOBILHOME 4 personas -  CONFORT EVO 24 m²
MOBILHOME 4 personas -  CONFORT EVO 24 m²
MOBILHOME 4 personas -  CONFORT EVO 24 m²
MOBILHOME 4 personas -  CONFORT EVO 24 m²
MOBILHOME 4 personas -  CONFORT EVO 24 m²
MOBILHOME 4 personas -  CONFORT EVO 24 m²
+ 4 fotos
MOBILHOME 4 personas - CONFORT EVO 24 m²
24m²
4 adultos
2 habitaciones
1 Baño
Terraza semicubierta
Acceso WiFi
aire acondicionado
Animales permitidos *
cafetera
Tumbona
refrigerador
Salón de jardín
calefacción
microonda
Plaza de parking
Mejor precio
Del 26 sept al 3 oct, 7 noches, a partir de
560 €
56 € reembolsados
Cancelación gratuita
MOBILHOME 4 personas - ALTAIR CONFORT
MOBILHOME 4 personas - ALTAIR CONFORT
MOBILHOME 4 personas - ALTAIR CONFORT
MOBILHOME 4 personas - ALTAIR CONFORT
MOBILHOME 4 personas - ALTAIR CONFORT
MOBILHOME 4 personas - ALTAIR CONFORT
25m²
4 adultos
2 habitaciones
1 Baño
Terraza semicubierta
Acceso WiFi
aire acondicionado
cafetera
Tumbona
congelador
refrigerador
Salón de jardín
microonda
Plaza de parking
Mejor precio
Del 27 jun al 4 jul, 7 noches, a partir de
640 €
64 € reembolsados
Cancelación gratuita
MOBILHOME 4 personas - SUPER MERCURE Confort 3/4 pers
MOBILHOME 4 personas - SUPER MERCURE Confort 3/4 pers
MOBILHOME 4 personas - SUPER MERCURE Confort 3/4 pers
MOBILHOME 4 personas - SUPER MERCURE Confort 3/4 pers
MOBILHOME 4 personas - SUPER MERCURE Confort 3/4 pers
MOBILHOME 4 personas - SUPER MERCURE Confort 3/4 pers
+ 1 foto
MOBILHOME 4 personas - SUPER MERCURE Confort 3/4 pers
28m²
4 adultos
2 habitaciones
1 Baño
Terraza semicubierta
Acceso WiFi
aire acondicionado
Animales permitidos *
cafetera
Tumbona
refrigerador
Salón de jardín
microonda
Plaza de parking
Mejor precio
Del 23 al 30 may, 7 noches, a partir de
860 €
86 € reembolsados
Cancelación gratuita
MOBILHOME 4 personas - EVO 29m² Confort , Vista al mar / Jacuzzi 3/4 pers
MOBILHOME 4 personas - EVO 29m² Confort , Vista al mar / Jacuzzi 3/4 pers
MOBILHOME 4 personas - EVO 29m² Confort , Vista al mar / Jacuzzi 3/4 pers
MOBILHOME 4 personas - EVO 29m² Confort , Vista al mar / Jacuzzi 3/4 pers
MOBILHOME 4 personas - EVO 29m² Confort , Vista al mar / Jacuzzi 3/4 pers
MOBILHOME 4 personas - EVO 29m² Confort , Vista al mar / Jacuzzi 3/4 pers
MOBILHOME 4 personas - EVO 29m² Confort , Vista al mar / Jacuzzi 3/4 pers
29m²
4 adultos
2 habitaciones
1 Baño
Nuevo
Terraza semicubierta
Acceso WiFi
aire acondicionado
Animales permitidos *
cafetera
Tumbona
refrigerador
Salón de jardín
microonda
Plaza de parking
Mejor precio
Del 23 al 30 may, 7 noches, a partir de
1045 €
105 € reembolsados
Cancelación gratuita
MOBILHOME 4 personas -  Cap Deseo confort 34 m² Vista al mar y Jacuzzi 3/4 pers
MOBILHOME 4 personas -  Cap Deseo confort 34 m² Vista al mar y Jacuzzi 3/4 pers
MOBILHOME 4 personas -  Cap Deseo confort 34 m² Vista al mar y Jacuzzi 3/4 pers
MOBILHOME 4 personas -  Cap Deseo confort 34 m² Vista al mar y Jacuzzi 3/4 pers
MOBILHOME 4 personas -  Cap Deseo confort 34 m² Vista al mar y Jacuzzi 3/4 pers
MOBILHOME 4 personas -  Cap Deseo confort 34 m² Vista al mar y Jacuzzi 3/4 pers
+ 6 fotos
MOBILHOME 4 personas - Cap Deseo confort 34 m² Vista al mar y Jacuzzi 3/4 pers
34m²
4 adultos
2 habitaciones
1 Baño
Terraza semicubierta
Acceso WiFi
Animales permitidos *
cafetera
Tumbona
Lava-vajillas
refrigerador
Salón de jardín
microonda
Plaza de parking
Mejor precio
Del 23 al 30 may, 7 noches, a partir de
1070 €
107 € reembolsados
Cancelación gratuita
PARCELA - Caravana/ Campervan/ o caravana plegable / tienda + coche
PARCELA - Caravana/ Campervan/ o caravana plegable / tienda + coche
PARCELA - Caravana/ Campervan/ o caravana plegable / tienda + coche
PARCELA - Caravana/ Campervan/ o caravana plegable / tienda + coche
PARCELA - Caravana/ Campervan/ o caravana plegable / tienda + coche
PARCELA - Caravana/ Campervan/ o caravana plegable / tienda + coche
PARCELA - Caravana/ Campervan/ o caravana plegable / tienda + coche
80m²
1 vehículo incluido
Suelo Hierba, Mezcla, Piedra
Caravana
Autocaravana
Tienda
Opciones disponibles: Conexión eléctrica 10A Parcelas adicionales para tiendas de campaña Frigorífico
Mejor precio
Del 26 jun al 3 jul, 7 noches, a partir de
210 €

*Consulta los detalles del alojamiento para conocer las condiciones específicas

Estamos buscando los mejores precios

Presentación de Camping Les Lauriers Roses

Descripción, Acceso, Puntos de interés, Cercanía
El Plus del establecimiento
  • Parque natural Les petits Maures y estanques de Villepey a 200 metros
  • Mar de arena fina a 3 kilómetros
  • Diversas actividades y ocio para toda la familia
¡Descubra el Camping Les Lauriers Roses en Fréjus, en el Var! Su estancia tendrá lugar en Provenza-Alpes-Costa Azul, no lejos de la playa (3 km). Déjese seducir por el encanto de este lugar tan especial. Apreciará especialmente la piscina exterior climatizada (accesible incluso fuera de temporada). Para garantizarle un confort óptimo, el camping dispone de numerosas instalaciones y servicios. Entre ellos, una lavandería, varios canales de TV y acceso Wi-Fi, así como sombrillas y tumbonas. Para comer o beber algo, hay una panadería, un restaurante y un bar. Si se aloja en el Camping Les Lauriers Roses de Fréjus, tendrá acceso a una gran variedad de actividades de ocio. ¡Hay mucho entretenimiento in situ! No hay motivo para aburrirse en este camping. Hay futbolín, billar y ping-pong durante todo el año. ¿Cómo mantener ocupados a los más pequeños durante sus vacaciones en el Camping Les Lauriers Roses? Tendrán la libertad de acudir a diversas actividades en el recinto del camping para mantener sus mentes entretenidas. Construidas especialmente para ellos, una piscina infantil y una zona de juegos están abiertas todo el año.
Para aprovechar nuestras ofertas de ensueño, reserve ahora en nuestro sitio web.
Dirección
Les Grands Châteaux de Villepey D7 Route de Roquebrune - 83600 Fréjus, Francia
¿Cómo llegar?
Estación Gare de Fréjus
Fréjus (6,3km)
Aeropuerto Aéroport de Nice
Bonito (65,3km)
Estación Gare de Valescure
San Rafael (12km)

Línea de autobús 9 u 11

Zona acuática

Tipo de piscina, horario de apertura
(los importes indicados pueden variar durante la temporada y son meramente informativos; deben abonarse in situ)

El camping dispone de una zona acuática con una gran piscina y una piscina infantil para nadar al aire libre. El mar está a 3 kilómetros, un estanque a 200 metros y un río a 4 kilómetros, por lo que podrá practicar deportes acuáticos a su gusto. El bañador no está permitido. Además, las casas móviles Super Cap Déséo y Evo 29 disponen de jacuzzi privado.

En la institución
  • Paraguas
  • Tumbonas gratuitas
Piscina exterior calentado

Piscina accesible sólo a los clientes del camping

  • Abierto de 24 enero a 13 octubre
  • Con piscina infantil
  • Gratuito

Actividades y animaciones propuestas

Zona acuática, Entretenimiento, Deportes y Ocio
(los importes indicados pueden variar durante la temporada y son meramente informativos; deben abonarse in situ)
Deportes y ocio
Camping Les Lauriers Roses - Camping Var
Camping Les Lauriers Roses - Camping Var
Camping Les Lauriers Roses - Camping Var
1/3
En la institución

Hay varias actividades deportivas y de ocio disponibles en el lugar, como tenis de mesa, alquiler de bicicletas, entrenamiento con pesas, voleibol y una biblioteca. Sin embargo, en los alrededores hay otras actividades para grandes y pequeños, como minigolf, submarinismo, tiro con arco y muchas más.

Deportes
  • Campo polideportivo - Abierto de 24 mayo a 13 octubre, Equipo disponible en el sitio, Gratuito
  • Tenis de mesa - Abierto de 24 mayo a 13 octubre, Equipo disponible en el sitio, Gratuito
  • Pétanque - Abierto de 24 mayo a 13 octubre, Equipo disponible en el sitio, Gratuito
  • Senderismo - Abierto de 24 mayo a 13 octubre, Equipo no suministrado, Gratuito
  • Pista de voleibol - Abierto de 25 mayo a 7 octubre, Gratuito
  • Sala de fitness al aire libre - Abierto de 24 mayo a 13 octubre, Equipo disponible en el sitio, Gratuito
Juegos
  • Billar - Abierto de 25 mayo a 7 octubre, Coste adicional
  • Fútbol de mesa - Abierto de 25 mayo a 7 octubre, Gratuito
  • Zona de juegos para niños - Abierto de 25 mayo a 7 octubre, Gratuito
En los alrededores
Masa de agua
  • Mar

    - 3km

  • Estanque

    - 0,2km, acceso directo, pesca autorizada, se permite nadar

  • Río

    - 4km, se permite nadar

Deportes
  • Golf - 3km
  • Pista de tenis - Equipo disponible en el sitio, Coste adicional
  • Centro ecuestre - Equipo disponible en el sitio, Coste adicional
  • Buceo - Coste adicional, 3km
  • Kayak - 4km
  • Vela - Coste adicional, 3km
  • Kayak - Coste adicional, 3km
Ocio
  • Pesca - 0,2km
  • Escalada de árboles - Coste adicional

Servicios in situ y cercanos

Salud y bienestar, Tiendas y restaurantes, Alquileres e instalaciones, Varios
(los importes indicados pueden variar durante la temporada y son meramente informativos; deben abonarse in situ)
Comercio minorista y hostelería

Este establecimiento de cuatro estrellas cuenta con un restaurante que ofrece una gran variedad de platos y un bar salón. Para su comodidad, a sólo 25 metros de la entrada hay una panadería y un supermercado.

En la institución
  • Panadería - Abierto de 21 mayo a 10 octubre
  • Restaurante - Toda la temporada, Restaurante in situ, platos del día y a la carta
  • Bar - Toda la temporada, Bar
En los alrededores
  • Supermercado - Toda la temporada, 0,1km
  • Tienda de comestibles - Toda la temporada, 0,1km
  • Panadería - Toda la temporada, 0,1km
  • Restaurante - Toda la temporada, 0km, Restaurante in situ, platos del día y a la carta
  • Bar - Toda la temporada, 0km, Bar
Servicios
Camping Les Lauriers Roses - Camping Var
Camping Les Lauriers Roses - Camping Var
Camping Les Lauriers Roses - Camping Var
1/3

El camping cuenta con modernas instalaciones sanitarias y un punto WiFi accesible. También ofrece servicios como lavadora, alquiler de neveras, sala de planchado, caja fuerte, alquiler de ropa de cama, así como sala de TV y alquiler de bicicletas para adultos y niños.

Alquileres y equipos
  • Alquiler de bicicletas en la institución : Bicicleta eléctrica, Bicicleta - Abierto de 25 mayo a 7 octubre, alquiler cerca de , Instalaciones: bicicletas para adultos y niños, bicicletas eléctricas para adultos, bicicletas de montaña para adultos y niños, sillas para niños.
  • Préstamo de juegos de mesa
  • La televisión en el bar
  • Préstamo de libros
Miscelánea
  • Conexión Wifi - Wifi gratuito
  • Calidad de la red telefónica - Bien
  • Lavandería - Pagando
  • Lavavajillas
  • Ducha caliente gratuita
  • Aseos
  • Cambiador

Calificaciones en Camping Les Lauriers Roses ★★★★

Reseñas de Campings.com
8.4 /10
Las 15 opiniones de los usuarios de Campings.com
Calificación general
Basado en 15 opiniones
8.4/10

Los comentarios han sido escritos por nuestros huéspedes luegode su estancia en el establecimiento: Camping Les Lauriers Roses

Resumen de opiniones
  • Ubicacion y entorno 8.8
  • Servicios y equipos 8.4
  • Limpieza del alojamiento 9.2
  • Comodidad de alojamiento 9
  • Calidad de la animación 8.4
Reseñas de Campings.com 100% verificado Reseñas de Campings.com 100% verificado

15 de opiniones

Ordenar por
Cargando comentarios
Carine
10/10
Publicado en: 25/7/23

Personal amable y acogedor, camping tranquilo y espacioso. Cerca de la playa y de las tiendas. Recomendamos

Idioma original: Francés
Patrick
10/10
Publicado en: 3/7/22

Gran camping, el único inconveniente son las largas veladas sin animación.
Organizar un bingo, una velada con un poco de música, una noche de juegos u otras actividades.
Hasta pronto

Idioma original: Francés
David
10/10
Publicado en: 29/8/21
Magali
9/10
Publicado en: 20/8/23
DAMIEN
9/10
Publicado en: 17/7/22

Camping tranquilo. Personal atento

Idioma original: Francés
Información práctica

Preguntas frecuentes sobre la Camping Les Lauriers Roses

¿Dónde se encuentra Camping Les Lauriers Roses ?
El Camping Les Lauriers Roses se encuentra en Fréjus - Var
¿Cuál es la tarifa más baja para una estancia en Camping Les Lauriers Roses ?
La tarifa más baja para una estancia en Camping Les Lauriers Roses es: 210 € - PARCELA - para una estancia de 7 días, de 26/6/26 a 3/7/26
¿Cuál es la calificación media de las reseñas de Camping Les Lauriers Roses ?
La calificación promedio de las opiniones de los clientes de Campings.com es 8.4/10. Mostrar las opiniones de los clientes .
¿Tiene Camping Les Lauriers Roses una piscina?
Sí. Camping Les Lauriers Roses está equipado con : Piscina exterior
¿Qué tipos de alojamiento se ofrecen en Camping Les Lauriers Roses ?
El Camping Les Lauriers Roses ofrece el siguiente alojamiento: Bungalow de lona, Casa móvil/Chalet, Parcela para caravana, Parcela para autocaravana, Parcela para tienda, Villa. Vea los alojamientos
¿Tiene Camping Les Lauriers Roses un servicio de catering?
Sí. Camping Les Lauriers Roses tiene: Bar, Restaurante. Saber más
¿Tiene Camping Les Lauriers Roses un parque infantil?
Sí, el camping tiene un patio de recreo para los niños. Saber más
¿A qué distancia de la playa está Camping Les Lauriers Roses ?
3km de Camping Les Lauriers Roses. Ver mapa
¿Está disponible el wifi en Camping Les Lauriers Roses ?
Sí, uno o más alojamientos tienen wifi disponible. Vea los alojamientos
¿Se permiten mascotas en Camping Les Lauriers Roses ?
Sí, uno o más alojamientos aceptan animales. Vea los alojamientos
¿Cuáles son las actividades cercanas a Camping Les Lauriers Roses ?
Las siguientes actividades están cerca del camping: Accro-branches, Deportes acuáticos, Golf, Kayak, Pesca. Ver todas las actividades
¿Ofrece Camping Les Lauriers Roses animaciones?
Sí, el camping ofrece la siguiente oferta de animación: Alquiler de bicicletas, Campo de deportes múltiples, Piscina exterior, Piscina exterior climatizada, Tenis de mesa. Mostrar todas las animaciones.
Inicio de la página